Ce nouveau projet situé au cœur de Chavannes de Bogis consiste en la transformation d’une grange historique en trois appartements spacieux et luxueux, alliant le charme rustique de l’ancien à la modernité et au confort contemporain.
Le charme de la bâtisse a été respecté avec soin, utilisant des matériaux nobles et traditionnels pour la rénovation.
Chaque appartement bénéficie d’un espace extérieur privé, que ce soit un jardin ou un balcon, permettant de profiter pleinement de l’environnement.
Prix
Dès CHF 940’000.-
Date de livraison
Février 2026
Nombre de pièces
2.5 et 5.5 pièces
Galerie
Situation
Village pittoresque situé dans le district de Nyon, Chavannes-de Bogis se trouve entre les rives scintillantes du lac Léman et les majestueuses montagnes du Jura, ce qui lui confère un cadre naturel exceptionnel.
La commune est un paradis pour les amateurs de nature et de plein air, offrant d’excellentes opportunités pour la randonnée, le vélo et les promenades en forêt. La proximité du lac Léman ajoute une dimension supplémentaire aux loisirs, avec des possibilités d’activités nautiques, de baignade et de promenades au bord de l’eau.
La vie communautaire y est dynamique et conviviale. Le village est doté d’écoles, de commerces de proximité, ainsi que d’installations sportives et de loisirs. De nombreux événements locaux et fêtes communautaires sont organisés régulièrement, renforçant les liens entre les résidents.
| Points d’intérêts | Distances | 
| Ecoles | 5.4 km | 
| Gare de Coppet | 4.4 km | 
| Bord du lac | 4.8 km | 
| Boulangerie | 1.7 km | 
| Restaurant | 190 m | 
Les appartements
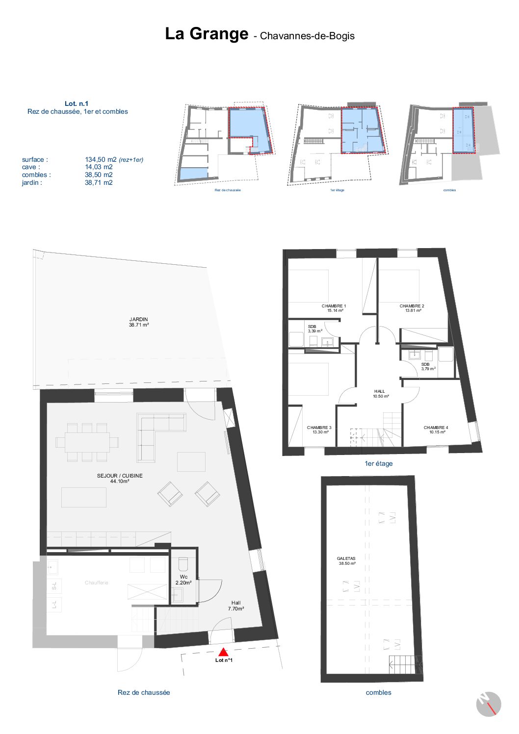
Ce projet comprend deux appartements de 2.5 pièces et un appartement de 5.5 pièces, offrant un espace de vie élégant, confortable et fonctionnel, au sein d’un environnement naturel et tranquille.
 
		
		
	
La Grange
| Lot | Étage | Surf. habitable | Prix total | |||||
|---|---|---|---|---|---|---|---|---|
| Lot 1 | Rez + 1er étage + Combles | 135 m2 | CHF 1'820'000 | |||||
| Lot 2 | Rez + 1er étage | 64 m2 | CHF 940'000 | |||||
| Lot 3 | Rez + 1er étage | 54 m2 | CHF 1'240'000 | |||||
* Lot 1 : 2 places de parking extérieures couvertes à acquérir en sus du prix de vente à CHF 70’000.–
** Lots 2 et 3 : une place de parking extérieure couverte à acquérir en sus du prix de vente à CHF 35’000.–

 
														 
														